宁波·维科东院|地暖+中央空调+新风
人气
图片
该小区已签约25户
城市:宁波
楼盘:维科东院
面积:109㎡
户型:
平层 大平层 复式 别墅系统:
30天内已有【140】人预约



免费获取报价方案
中央空调
地暖
暖气片
地暖空调一体机
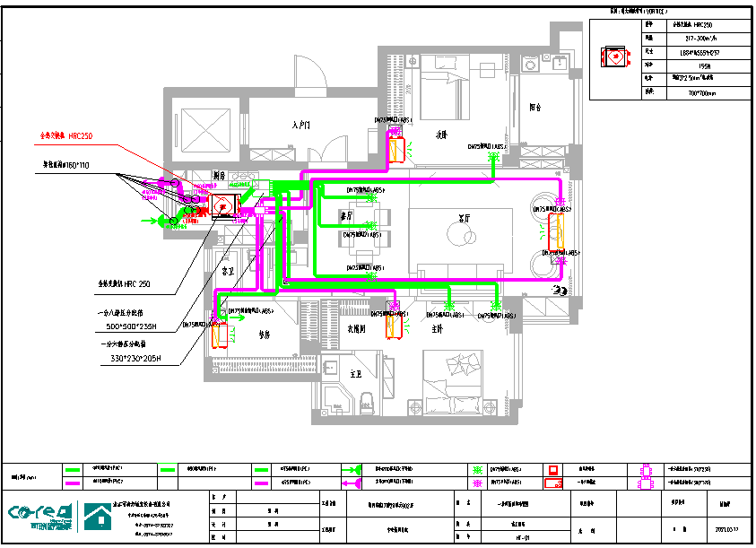
新风
净水
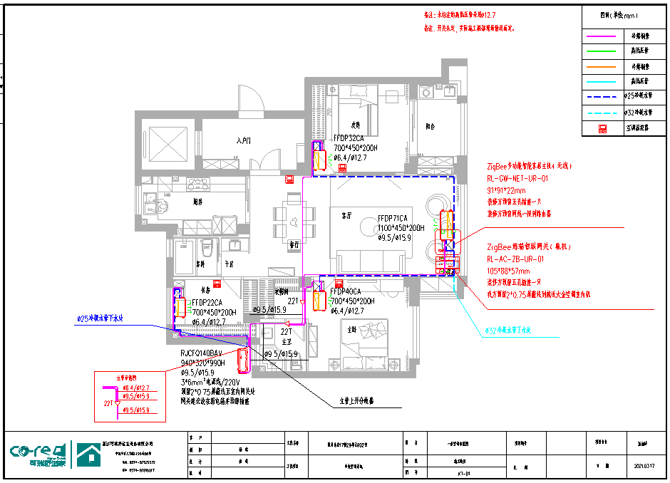
给排水
智能家居
别墅电梯
四恒
全空气
AI科技家电
抱歉,您输入的内容有误,请重新输入!
恭喜您,提交成功!我们会尽快与您联系!
预约参观工地
立即申请
2021-05-18
2252阅读
该小区已签约25户
户型:
系统:
中央空调
地暖
暖气片
地暖空调一体机
新风
净水
给排水
智能家居
别墅电梯
四恒
全空气
AI科技家电




抱歉,您输入的内容有误,请重新输入!
恭喜您,提交成功!我们会尽快与您联系!
预约参观工地
立即申请
/