杭州·金基晓庐|中央空调+地暖
人气
图片
该小区已签约13户
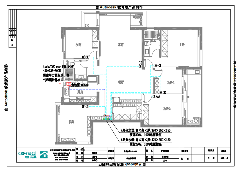
城市:杭州
楼盘:金基晓庐
面积:112㎡
户型:
平层 大平层 复式 别墅系统:
30天内已有【106】人预约


免费获取报价方案
中央空调
地暖
暖气片
地暖空调一体机
新风
净水
给排水
智能家居
别墅电梯
四恒
全空气
AI科技家电
抱歉,您输入的内容有误,请重新输入!
恭喜您,提交成功!我们会尽快与您联系!
预约参观工地
立即申请
2021-03-05
1796阅读
该小区已签约13户
户型:
系统:
中央空调
地暖
暖气片
地暖空调一体机
新风
净水
给排水
智能家居
别墅电梯
四恒
全空气
AI科技家电





抱歉,您输入的内容有误,请重新输入!
恭喜您,提交成功!我们会尽快与您联系!
预约参观工地
立即申请
/